Вхід на сайт

Ел. пошта:
Пароль:

Реєстрація на сайті

Призвіще: Область:
Ім'я: Населений пункт:
    По батькові: Номер телефону:
    Ел. пошта: Компанія:
      Пароль: Посада:
      Повторіть пароль: Рік початку роботи:
      Фото:
      З правилами розміщення об'єктів погоджуюсь

      Забули пароль?

      Вкажіть ел. пошту — ми надішлемо Вам новий пароль для входу
      Ел. пошта:

      Проблема на сайті

      Закрити
      Ваш e-mail:
      (необов'язково)
      Розкажіть нам, що сталось

      без комісії ул. Мишуги Александра, 10 — Продається торгівельний майданчик

      (г. Киев, Дарницкий район)

      247100 $

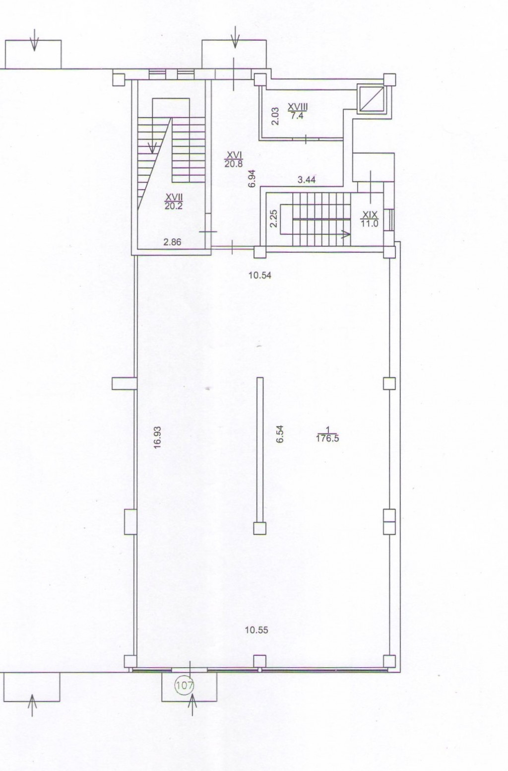
      Загальна площа: 176 кв.м

      Поверх: 1

      К-ть поверхів: 4

      ПРОДАМ нежитл./приміщення 176,5 м2. БЦ Паралель. Ст.м.Позняки. Власник
      ПРОДАМ своє власне нежитлове приміщення - 176,5 м2 у БЦ Паралель, Дарницький р-н, вул.Олександра Мишуги, 10. Відстань до ст.м.Позняки – 70 м ! 1-й поверх 4-х поверхової офісної будівлі. 2 окремих входа: 1-ий з вул.О.Мишуги; 2-ий спільний вхід з БЦ з вул.Григоренка
      Великий спектр використання приміщення. Найкраща пропозиція – торгова площа, громадське харчування. БЦ розташований на житловому масиві Позняки. Мікрорайон із великою щільністю населення. Прохідне місце. Вітрини на фасад. Місце для великої вивіски. Кондиціювання, Відеоспостереження, Охорона, Пожежна сигналізація, Серверна кімната, кабельна мережа інтернету. Сан-вузел в приміщені. В приміщені є невелика кімната – обладнана під кухню. Світле та просторе приміщення, з дорогим, якісним ремонтом. Вентиляція, кондиціювання, інтернет. Висота стелі 3 м. Поряд: ТРЦ Піраміда, супермаркети, бутикі, кафе, ресторани, відділення банків та пошти. Є паркомісця в підземному паркінгу! Пропозиція від власника, без %%.
      Вартість – 1700 $ / m2. Вартість = 247.100 $ / об'єкт
      Запрошую до співпраці ріелторів.
      Телефонуйте - домовимося: 096-050-66-50

      Надіслати скаргу

      Закрити
      Поскаржитися на об'єкт «ул. Мишуги Александра, 10 (г. Киев, Дарницкий район)»
      Ваш коментар:(Необов'язково)
      Ваша скарга буде надіслана ріелтору, що розмістив об'єкт, а також адміністрації сайту АФНУ.
      Ваше ім'я:
      (Обов'язково)
      Ваш e-mail для відповіді:
      (Обов'язково)

      Коментарі