Вхід на сайт

Ел. пошта:
Пароль:

Реєстрація на сайті

Призвіще: Область:
Ім'я: Населений пункт:
    По батькові: Номер телефону:
    Ел. пошта: Компанія:
      Пароль: Посада:
      Повторіть пароль: Рік початку роботи:
      Фото:
      З правилами розміщення об'єктів погоджуюсь

      Забули пароль?

      Вкажіть ел. пошту — ми надішлемо Вам новий пароль для входу
      Ел. пошта:

      Проблема на сайті

      Закрити
      Ваш e-mail:
      (необов'язково)
      Розкажіть нам, що сталось

      без комісії ул. Половка — Здається промисловість

      (г. Полтава, Киевский район)

      55 грн. за кв.м.

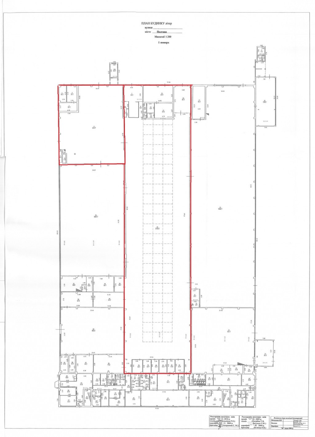
      Загальна площа: 2185 кв.м

      К-ть поверхів: 1

      Оренда виробничого цеху площею 2185м2, в районі промислової зони Супрунівки залізничної, р-н вул. Половка
      Опис:
      -у цеху є дві кранбалки 3,2 т., висота до кранбалки Н = 9м., висота цеху Н = 11 м.;
      -високі ворота для в'їзду фур;
      -на виробничій базі своя підстанція 600 кВт, є майданчик з залізничною гілкою та козловим краном, опалювані офісні та побутові приміщення;
      -є резервуари для зберігання ПММ та сипких матеріалів;
      -майданчики для стоянки вантажного транспорту;
      -охорона, відео спостереження

      Вартість: 55 грн/м2 + комунальні послуги+ одноразова комісія АН 50%.

      Надіслати скаргу

      Закрити
      Поскаржитися на об'єкт «ул. Половка (г. Полтава, Киевский район)»
      Ваш коментар:(Необов'язково)
      Ваша скарга буде надіслана ріелтору, що розмістив об'єкт, а також адміністрації сайту АФНУ.
      Ваше ім'я:
      (Обов'язково)
      Ваш e-mail для відповіді:
      (Обов'язково)

      Коментарі