Вхід на сайт

Ел. пошта:
Пароль:

Реєстрація на сайті

Призвіще: Область:
Ім'я: Населений пункт:
    По батькові: Номер телефону:
    Ел. пошта: Компанія:
      Пароль: Посада:
      Повторіть пароль: Рік початку роботи:
      Фото:
      З правилами розміщення об'єктів погоджуюсь

      Забули пароль?

      Вкажіть ел. пошту — ми надішлемо Вам новий пароль для входу
      Ел. пошта:

      Проблема на сайті

      Закрити
      Ваш e-mail:
      (необов'язково)
      Розкажіть нам, що сталось

      без комісії ул. Блюхера, 49 — Продається квартира в новобудові

      (г. Харьков, Московский район)

      1000800 грн.

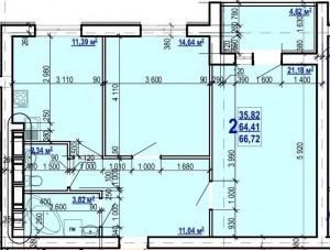
      Загальна площа: 66.72 кв.м

      Жила площа: 36 кв.м

      Площа кухні: 11 кв.м

      Кімнат: 2

      Поверх: 1

      К-ть поверхів: 9

      Коміссія 0%. Продаж 2-кімнатна квартира в новобудові на Салтівці по вул. Валентинівська, 49. Місце розташування являє собою сугубо можливості спального району. До найближчого метро 2.5 км пішим ходом, але звісно поруч проходять маршрути тролейбусів та автобусів на яких можна дібратися буквально за 15 хвилин, сама зупинка транспорту заходится біля ЖК. В радиусі 1.5 км. від комплексу Ви зможете знайти: невеличкі продовольчі магазини, 4 школи, 4 дитячих садка, продовольчій ринок та супермаркет "Класс", звісно район не обмежений і тренажорним залом, кафе ...
      Комплекс по класу житла, відносится до ЄКОНОМУ, территорі комплексу не буде закритого типу але буде огороджена. Забудовником передбачено: багатоповерхову парковку, оздоблення дитячими майданчиками та благоустрій территорії.
      -
      Квартира розташована в будинку № 12 - будується, здача запланована на 4 квартал 2022 року.
      Площа квартири:
      Загальна. - 67 м²;
      Житлова - 36 м²;
      Кухня - 11 м².
      -
      ПОТРІБНО КАПІТАЛЬНИЙ РЕМОНТ.
      КОМПЛЕКТАЦІЯ КВАРТИРИ:
      • встановлені перегородки як зазначено на плані;
      • металопластикові вікна (viknaland)
      • горизонтальна розводка опалення та радіатори опалення (є можливість поставити лічильник на тепло, регулятори на батареї і контролювати подачу тепла в квартиру індивідуально);
      • вхідні залізні двері;
      • лічильник на електрику;
      • підведені комунікації (холодна, гаряча вода);
      • каналізація;
      • прийнято електрику;
      • зроблено зовнішнє утеплення стін (утеплювач пінополістирол 100 мм).
      -
      Буду радий Вас чути):
      Пн-Пт - 8: 00-20: 00.
      Сб-Нд - II: 00-20: 00
      Святкові дні - вихідний.

      Надіслати скаргу

      Закрити
      Поскаржитися на об'єкт «ул. Блюхера, 49 (г. Харьков, Московский район)»
      Ваш коментар:(Необов'язково)
      Ваша скарга буде надіслана ріелтору, що розмістив об'єкт, а також адміністрації сайту АФНУ.
      Ваше ім'я:
      (Обов'язково)
      Ваш e-mail для відповіді:
      (Обов'язково)

      Коментарі