Вхід на сайт

Ел. пошта:
Пароль:

Реєстрація на сайті

Призвіще: Область:
Ім'я: Населений пункт:
    По батькові: Номер телефону:
    Ел. пошта: Компанія:
      Пароль: Посада:
      Повторіть пароль: Рік початку роботи:
      Фото:
      З правилами розміщення об'єктів погоджуюсь

      Забули пароль?

      Вкажіть ел. пошту — ми надішлемо Вам новий пароль для входу
      Ел. пошта:

      Проблема на сайті

      Закрити
      Ваш e-mail:
      (необов'язково)
      Розкажіть нам, що сталось

      без комісії пр. Победы, 67 — Продається квартира

      (г. Киев, Святошинский район)

      140000 $

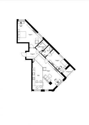
      Загальна площа: 101 кв.м

      Жила площа: 70 кв.м

      Площа кухні: 20 кв.м

      Кімнат: 3

      Поверх: 13

      К-ть поверхів: 16

      Пр.Победы 67, метро Нивки, Святошинский район.
      Продажа 3-комн.квартиры. в новом, сданном доме.

      «Сан Франциско» - жилой комплекс комфорт-класса, монолитно-каркасный.

      Общий метраж– 101.4 кв.м.
      2 раздельные комнаты и просторная кухня-гостиная, 2 сан.узла, 1 балкон.
      Видовой 13-й этаж.
      Квартира – после строителей. Но уже сделана стяжка на полу и стенах, електро-разводка!! Уже можно заходить на ремонт. Установлены счетчики на тепло, воду, электричество.

      Квартира с преимуществами:
      -Метро – очень близко, всего 2 мин.до входа на станцию метро Нивки.
      -Состояние – под отделку, можно сделать дизайн по личным предпочтениям, для себя.
      -Расположение – близость основной магистрали пр.Победы, дает возможность с легкостью добраться в любую точку г.Киева.
      -Компактная и продуманная планировка – ничего лишнего, только самое необходимое



      В 5 мин.ходьбы, через дорогу расположен парк Нивки, с каскадом озер и многолетними деревьями. Комплекс с огражденной, охраняемой территорией, подземным паркингом и своей инфраструктурой (UltraMarket, аптека, банк, Львовские круасаны и пр.).
      В доме красивый, презентабельный холл, скоростные лифты и стильные коридоры, придомовая территория – во внутреннем дворе, с зоной отдых, спорта и детской площадкой.


      140000 дол., без комиссии.
      Доступна к просмотру.

      Надіслати скаргу

      Закрити
      Поскаржитися на об'єкт «пр. Победы, 67 (г. Киев, Святошинский район)»
      Ваш коментар:(Необов'язково)
      Ваша скарга буде надіслана ріелтору, що розмістив об'єкт, а також адміністрації сайту АФНУ.
      Ваше ім'я:
      (Обов'язково)
      Ваш e-mail для відповіді:
      (Обов'язково)

      Коментарі