Вхід на сайт

Ел. пошта:
Пароль:

Реєстрація на сайті

Призвіще: Область:
Ім'я: Населений пункт:
    По батькові: Номер телефону:
    Ел. пошта: Компанія:
      Пароль: Посада:
      Повторіть пароль: Рік початку роботи:
      Фото:
      З правилами розміщення об'єктів погоджуюсь

      Забули пароль?

      Вкажіть ел. пошту — ми надішлемо Вам новий пароль для входу
      Ел. пошта:

      Проблема на сайті

      Закрити
      Ваш e-mail:
      (необов'язково)
      Розкажіть нам, що сталось

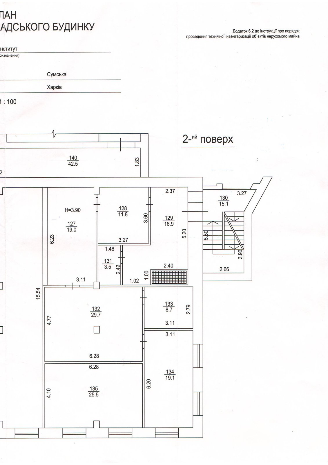
      ул. Сумская, 130а — Продається офіс

      (г. Харьков, Киевский район)

      342000 $

      Загальна площа: 380 кв.м

      Поверх: 1

      К-ть поверхів: 5

      Продам помещение нежилого фонда на ул. Сумская (р-н кинотеатра «Парк») общей площадью 800 кв.м.
      Объект находится на 1 и 2 этажах 5-ти этажного административного здания.
      Первый этаж площадью 380 кв.м. со своим отдельным входом и второй этаж- 420 кв.м.- тоже с отдельным входом. Продажа может быть как всего помещения, так и по отдельности.
      Помещение с полным капитальным ремонтом, автономным отоплением, полностью оснащены кондиционерами.
      Формат: свободная планировка с кухней и отдельным кабинетом руководител, санузел.
      Полный пакет документов.
      Данный вариант идеален под школу, офис, представительство, клинику и т.п.
      Стоимость 900 долл./кв.м.
      С реальными покупателями диалог по цене!

      Надіслати скаргу

      Закрити
      Поскаржитися на об'єкт «ул. Сумская, 130а (г. Харьков, Киевский район)»
      Ваш коментар:(Необов'язково)
      Ваша скарга буде надіслана ріелтору, що розмістив об'єкт, а також адміністрації сайту АФНУ.
      Ваше ім'я:
      (Обов'язково)
      Ваш e-mail для відповіді:
      (Обов'язково)

      Коментарі