Вхід на сайт

Ел. пошта:
Пароль:

Реєстрація на сайті

Призвіще: Область:
Ім'я: Населений пункт:
    По батькові: Номер телефону:
    Ел. пошта: Компанія:
      Пароль: Посада:
      Повторіть пароль: Рік початку роботи:
      Фото:
      З правилами розміщення об'єктів погоджуюсь

      Забули пароль?

      Вкажіть ел. пошту — ми надішлемо Вам новий пароль для входу
      Ел. пошта:

      Проблема на сайті

      Закрити
      Ваш e-mail:
      (необов'язково)
      Розкажіть нам, що сталось

      ул. Леонида Бородича — Продається промисловість

      (г. Кривой Рог, Долгинцевский район)

      250000 $

      Загальна площа: 2441 кв.м

      К-ть поверхів: 2

      Продаж виробничого підприємства, СТО, офісне приміщення на закритій, асфальтованій, огородженій території.
      - Дніпропетровська обл.
      - Кривий Ріг, Довгинцівський р-н, вул. Л.Бородича.
      - Земельна ділянка 0.46га

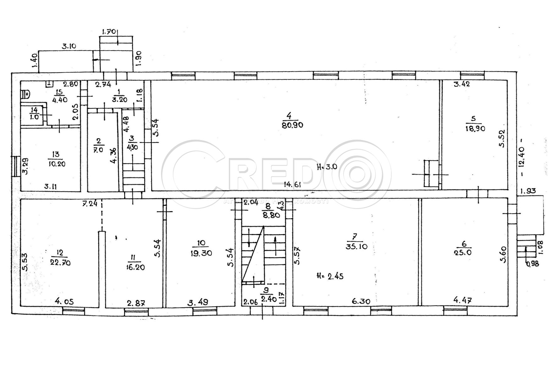
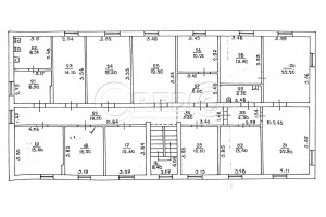
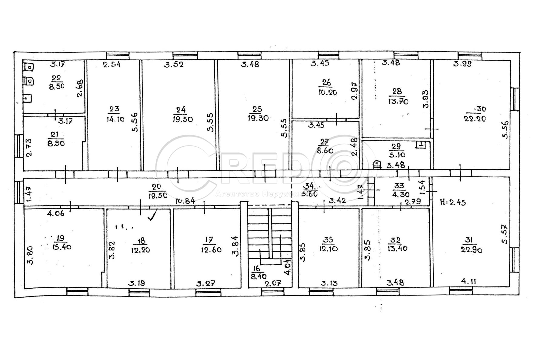
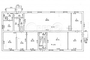
      Планування об’єкту:
      - Загальна площа 2441.1кв.м
      - Двоповерхова адмінбудівля 515.5кв.м.
      - Нежитлове приміщення
      - Бокси
      - База
      - Сторожка

      Комунікації:
      - Центральне водопостачання та каналізація
      - Автономне опалення
      - Електропостачання 380V, 30Квт.

      Вартість продажу 250 000у.о. договірна

      За будь-якими питаннями за цією або схожими пропозиціями звертайтесь за номером телефону, де вам відповість наш ріелтор 098 985 09 08.
      З повагою, команда АН Credo

      Надіслати скаргу

      Закрити
      Поскаржитися на об'єкт «ул. Леонида Бородича (г. Кривой Рог, Долгинцевский район)»
      Ваш коментар:(Необов'язково)
      Ваша скарга буде надіслана ріелтору, що розмістив об'єкт, а також адміністрації сайту АФНУ.
      Ваше ім'я:
      (Обов'язково)
      Ваш e-mail для відповіді:
      (Обов'язково)

      Вам также могут подойти

      ул. Леонида Бородича (г. Кривой Рог, Долгинцевский район) - Продається промисловість, 280000 $ - АФНУ

      Оновлено: 22 квітня

      Розміщено: 9 червня 2021

      Продається промисловість

      г. Кривой Рог, ул. Леонида Бородича

      280000 $

      Літвинова Ірина Вікторівна

      Продаж діючого автосервісу
      - Довгинцевський район
      -вул.Леоніда Бородича

      Про об’єкт:
      - окремий комплекс розташований на огородженій асфальтованій території

      Планування об’єкту:
      - загальна площа: 1708 кв.м
      - основний цех-721 кв.м
      -…

      Детальніше

      ул. Леонида Бородича (г. Кривой Рог, Долгинцевский район) - Продається промисловість, 280000 $ - АФНУ

      Оновлено: 22 квітня

      Розміщено: 9 червня 2021

      Продається промисловість

      г. Кривой Рог, ул. Леонида Бородича

      280000 $

      Літвинова Ірина Вікторівна

      Продаж діючого автосервісу
      - Довгинцевський район
      -вул.Леоніда Бородича

      Про об’єкт:
      - окремий комплекс розташований на огородженій асфальтованій території

      Планування об’єкту:
      - загальна площа: 1708 кв.м
      - основний цех-721 кв.м
      -…

      Детальніше

      Коментарі