Вхід на сайт

Ел. пошта:
Пароль:

Реєстрація на сайті

Призвіще: Область:
Ім'я: Населений пункт:
    По батькові: Номер телефону:
    Ел. пошта: Компанія:
      Пароль: Посада:
      Повторіть пароль: Рік початку роботи:
      Фото:
      З правилами розміщення об'єктів погоджуюсь

      Забули пароль?

      Вкажіть ел. пошту — ми надішлемо Вам новий пароль для входу
      Ел. пошта:

      Проблема на сайті

      Закрити
      Ваш e-mail:
      (необов'язково)
      Розкажіть нам, що сталось

      Сергія Колачевського — Здається торгівельний майданчик

      (г. Кривой Рог, Терновской район)

      350 грн. за кв.м.

      Загальна площа: 140 кв.м

      Поверх: 1

      К-ть поверхів: 4

      Оренда торгового приміщення
      - Тернівський р-н
      - вул. С. Колачевського

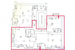
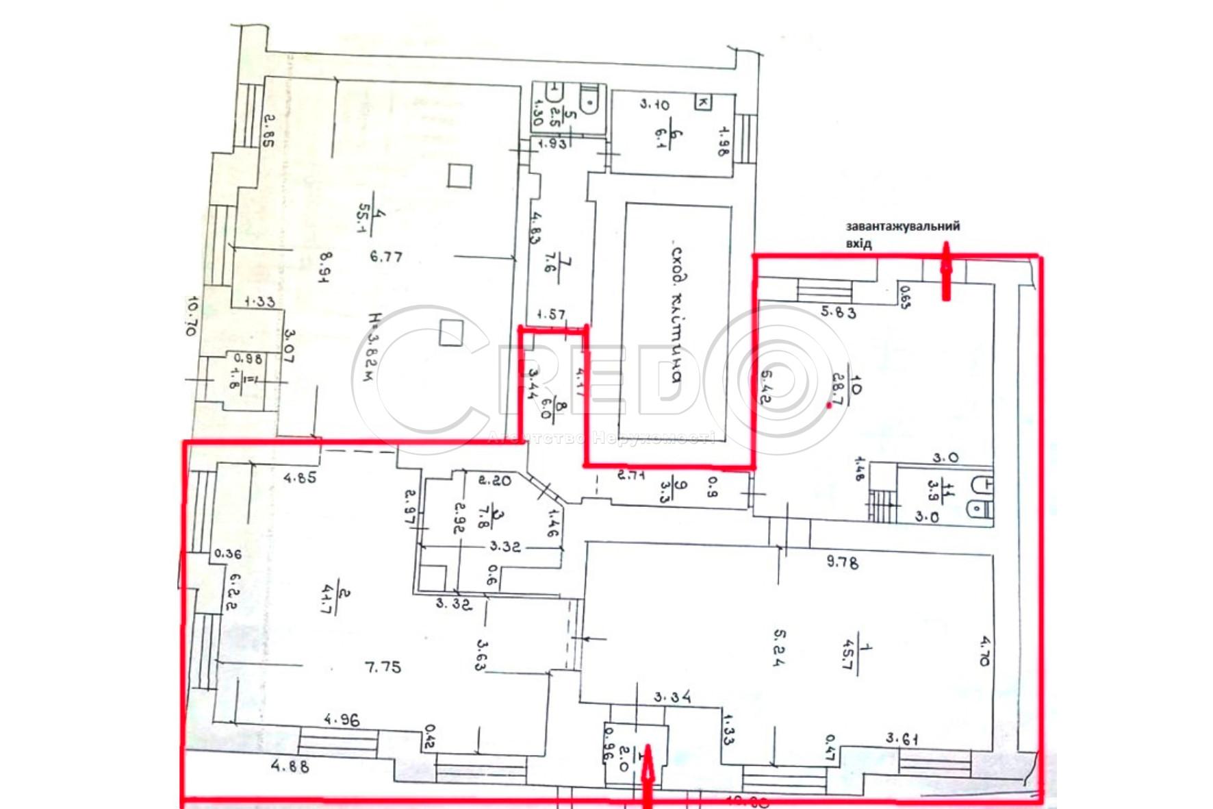
      Технічні характеристики:
      - вбудоване в перший поверх 4-х поверхового будинку
      - окремий вхід
      - " червона лінія"
      - зручний підїзд для авто

      Планування об’єкту:
      - загальна площа - 140 кв.м
      - торгівельна площа - 90 кв.м
      - подсобні приміщення
      - центральний та завантажувальний вхід

      Комунікації:
      - опалення автономне газове
      - центральне електропостачання 20кВт; 380 Вт
      - кондиціювання
      - центральне водопостачання
      - центральна каналізація
      - пожежна, охоронна сігналізації

      Логістична розв’язка:
      - приміщення розташоване по "червоній лінії"
      - поруч зупинки громадського транспорту
      - залізничний вокзал "Рокувата"
      - житловий масив
      - великий автомобільний та пішохідний трафік

      Додаткові платежі:
      - електроенергія, вода - лічильники
      - вивіз сміття
      - послуги ЖКХ
      - інтернет, охоронна сигналізація
      - послуга агенції - 50 %
      Оренда - 350 грн/кв.м

      За будь-якими питаннями за цією або іншими пропозиціями звертайтесь за номером телефону 067 696 16 51.
      З повагою, команда Credo!

      Надіслати скаргу

      Закрити
      Поскаржитися на об'єкт «Сергія Колачевського (г. Кривой Рог, Терновской район)»
      Ваш коментар:(Необов'язково)
      Ваша скарга буде надіслана ріелтору, що розмістив об'єкт, а також адміністрації сайту АФНУ.
      Ваше ім'я:
      (Обов'язково)
      Ваш e-mail для відповіді:
      (Обов'язково)

      Вам также могут подойти

      ул. Тимирязева (г. Кривой Рог, Терновской район) - Здається торгівельний майданчик, 500 грн. за кв.м. - АФНУ

      Оновлено: 3 грудня

      Розміщено: 16 липня

      Здається торгівельний майданчик

      площа 130, поверх 1/5

      г. Кривой Рог, ул. Тимирязева

      500 грн. за кв.м.

      Літвинова Ірина Вікторівна

      Оренда приміщеннь на "Роковатій"
      - Тернівський район
      - вул. Тімірязєва

      Технічні характеристики:
      - перший поверх 5-х поверхового житлового будинку
      - проїздна частина

      Планування об’єкту:
      - загальна площа -130 кв.м
      -…

      Детальніше

      пр. Університетський (г. Кривой Рог, Саксаганский район) - Здається торгівельний майданчик, 350 грн. за кв.м. - АФНУ

      Оновлено: 9 жовтня

      Розміщено: 29 березня 2024

      Здається торгівельний майданчик

      площа 260, поверх 1/9

      г. Кривой Рог, пр. Університетський

      350 грн. за кв.м.

      Літвинова Ірина Вікторівна

      Оренда торгового приміщення пр. Університетський
      - Довгинцівський район

      Технічні характеристики:
      - перший поверх 9-ти поверхового житлового будинку
      - "червона лінія"
      - в приміщенні ведуться ремонтні роботи

      Планування об’єкту:
      - загальна…

      Детальніше

      ул. Янова (г. Кривой Рог, Центрально-Городской район) - Здається торгівельний майданчик, 350 грн. за кв.м. - АФНУ

      Оновлено: 7 листопада

      Розміщено: 6 травня

      Здається торгівельний майданчик

      площа 207, поверх 1/4

      г. Кривой Рог, ул. Янова

      350 грн. за кв.м.

      Літвинова Ірина Вікторівна

      Оренда магазину в історично-діловому центрі міста
      - Центрально Міський район
      - Вул. Комерційна, 3

      Про об’єкт:
      - 1 поверх 4 -х поверхового житлового будинку
      - Окремий вхід
      - Перед приміщенням…

      Детальніше

      Коментарі