Вхід на сайт

Ел. пошта:
Пароль:

Реєстрація на сайті

Призвіще: Область:
Ім'я: Населений пункт:
    По батькові: Номер телефону:
    Ел. пошта: Компанія:
      Пароль: Посада:
      Повторіть пароль: Рік початку роботи:
      Фото:
      З правилами розміщення об'єктів погоджуюсь

      Забули пароль?

      Вкажіть ел. пошту — ми надішлемо Вам новий пароль для входу
      Ел. пошта:

      Проблема на сайті

      Закрити
      Ваш e-mail:
      (необов'язково)
      Розкажіть нам, що сталось

      Енергетична, 5а — Продається квартира

      (г. Тернополь)

      155000 $

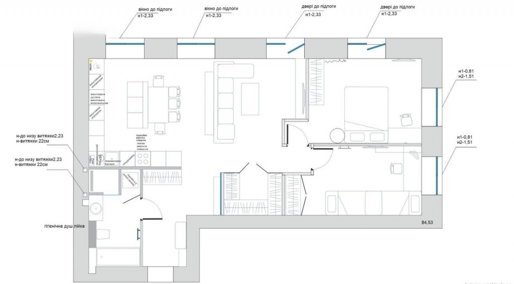
      Загальна площа: 93 кв.м

      Жила площа: 30 кв.м

      Площа кухні: 35 кв.м

      Кімнат: 3

      Поверх: 10

      К-ть поверхів: 12

      Продається чудова 3-кімнатна квартира-студія в ЖК “Енергія” розташований неподалік центру. Дизайн квартири виконано у спокійний тонах, акцент на дерев’яну фактуру , LED підсвітку , треки. Стеля – шумоізоляція + 2 листи гіпсокартону , підвісна .
      Будинок цегляний ,цегляні зовнішні стіни та перестінки.Опелення: індивідуальне газове
      Висота стелі: 2,75 м
      Паркінг: підземний , станції зарядки електромобілів.
      Загальна площа квартири складає 93 кв.м, з яких кухня – 35 кв.м. Просторі кімнати та сучасний дизайн забезпечать комфортне проживання для вас та вашої родини.
      Тераса для відпочинку на свіжому повітрі.
      Простора кухня-студія стане чудовим місцем для сімейних зустрічей та вечірок з друзями. Вікна виходять на тихий двір, що забезпечує спокій та затишок.
      Район з розвинутою інфраструктурою: поруч магазини, школи, дитячі садки та зупинки громадського транспорту.
      Сучасний санвузол (душ + ванна )
      Повністю відокремлений внутрішній двір без доступу для автомобілів. На площі двору розташовується мультиспортивний стадіон з сучасним обладнанням, відпочинкова зона з фонтаном, альтанками ландшафтним дизайном , атракціони.

      Усі деталі при огляді квартири

      Надіслати скаргу

      Закрити
      Поскаржитися на об'єкт «Енергетична, 5а (г. Тернополь)»
      Ваш коментар:(Необов'язково)
      Ваша скарга буде надіслана ріелтору, що розмістив об'єкт, а також адміністрації сайту АФНУ.
      Ваше ім'я:
      (Обов'язково)
      Ваш e-mail для відповіді:
      (Обов'язково)

      Коментарі